Analisi del progetto
Analisi del
contesto architettonico
Concept progettuale
Sviluppo
concept progettuale
Visualizzazione immersiva
Generazione render
consultazione immersiva
Risultato finale
Risultato
finale

Scopri come lavoriamo

Iniziamo dal progetto

È la fase più creativa e delicata: il nostro compito è ascoltare e interpretare i gusti del cliente, traducendo desideri ed esigenze in proposte concrete.
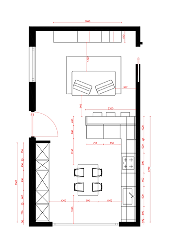
Studiamo attentamente il layout dell’abitazione, ottimizziamo gli spazi e proponiamo soluzioni che coniugano design e funzionalità, per creare ambienti armoniosi e su misura.
Planimetria

Pianificazione dell'arredamento

In questa fase elaboriamo una o più proposte personalizzate, definendo lo stile di design, la collocazione degli elementi e una selezione di materiali coerente e armoniosa.
Grazie alla nostra applicazione di visualizzazione immersiva, il cliente può esplorare in anteprima il risultato finale con un livello di dettaglio elevatissimo, muovendosi liberamente all’interno dei diversi ambienti virtuali.

Seguiamo ogni fase del cantiere

Dopo aver definito il progetto di arredamento, affianchiamo il cliente anche nella fase esecutiva, seguendo direttamente lo sviluppo in cantiere. Questo ci permette di verificare che gli impianti vengano predisposti in modo corretto e in piena coerenza con il progetto realizzato.
In particolare, per ambienti complessi come la cucina, ci assicuriamo che prese elettriche, punti luce, attacchi del gas, dell’acqua e scarichi siano posizionati con precisione, così da combaciare perfettamente con le misure dei mobili e garantire un risultato funzionale ed esteticamente impeccabile.

Un risultato finale sorprendente

Dopo la fase di progettazione e predisposizione degli impianti, ci occupiamo con la massima attenzione della posa e del montaggio degli arredi all’interno dell’abitazione. Ogni fase viene seguita con scrupolosità, dall’allineamento dei mobili alla verifica delle finiture, per garantire un risultato perfetto e duraturo.
Grazie all’esperienza del nostro team, assicuriamo precisione millimetrica nei dettagli: ante e cassetti perfettamente regolati, giunzioni curate, superfici protette e ambienti lasciati in ordine. Un lavoro eseguito con professionalità che valorizza il progetto e dona agli spazi comfort ed estetica impeccabile.

arredamenti